【日時】
11月17日(月)〜12月26日(金)まで
【場所】
天童市
詳しくはお問い合わせください。
【内容】
🌼完成前見学会のご案内🏡✨
いつでもご見学可能です!✨
★みどころポイント
・約築90年の旧家を大規模改装!!
・断熱工事・構造強化・断熱サッシを入れ性能アップ!!
・住宅設備は全て入替し、快適な空間へ☆
・古民家の雰囲気を出すために既存の梁や柱を残します。
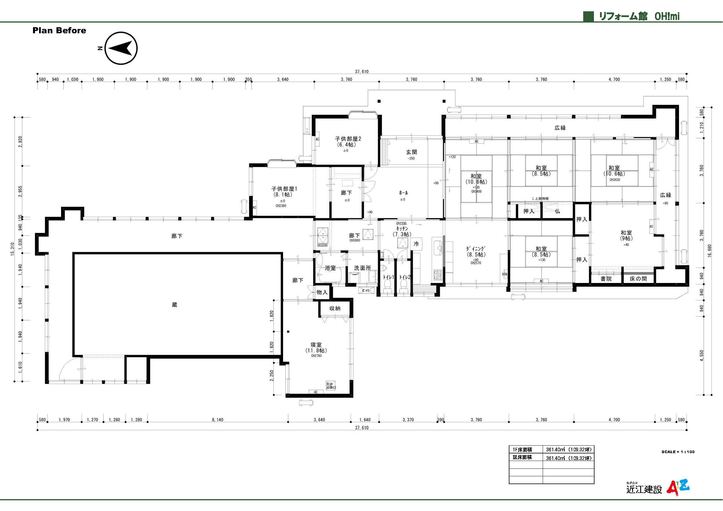
★間取りビフォーアフター
before
After
見学予約を受け中ですので、ぜひお申込み下さいませ🥰✨
株式会社 近江建設
リフォーム館天童店
【023-652-0314】






