【日時】
4月20日(月)まで
【場所】
大江町
詳しくはお問い合わせください。

【内容】
🌼完成見学会のご案内🏡✨
いつでもご見学可能です!✨

★みどころポイント
①築25年の中古住宅がどこまで変わるのか体感
築25年の中古住宅をベースに、水まわり設備の交換や内装リフォーム、外壁塗装を実施。
リフォームによって住まいがどのように生まれ変わるのか、実際の建物でご覧いただけます。

②最新設備に入れ替えた水まわり
キッチン・浴室・トイレなど、毎日使う水まわり設備を最新仕様へ。
新しい設備によって、使いやすさや快適性がどのように変わるのかを体感できます。

③開放感のあるアイランドキッチン
吊り戸棚を撤去し、空間を広く見せるアイランドキッチンを採用。
マルチ収納タイプのキッチンで、収納力と家事のしやすさを両立した空間になっています。

④既存を活かしたリフォームの考え方
状態の良い和室などはそのまま活かし、必要な部分だけをリフォーム。
「どこを残して、どこを新しくするのか」という、実際のリフォームの考え方も参考にしていただけます。

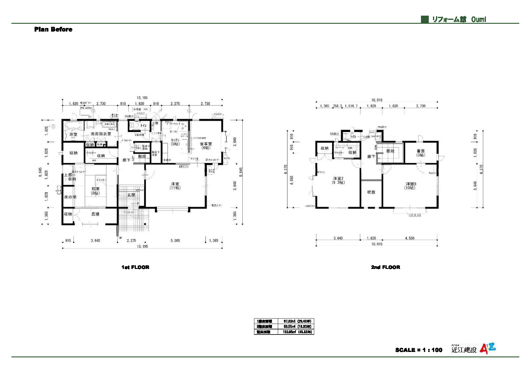
★間取りビフォーアフター
before

after

見学予約を受け中ですので、ぜひお申込み下さいませ🥰✨

株式会社 近江建設
リフォーム館OUMI天童店
【023-681-4603】