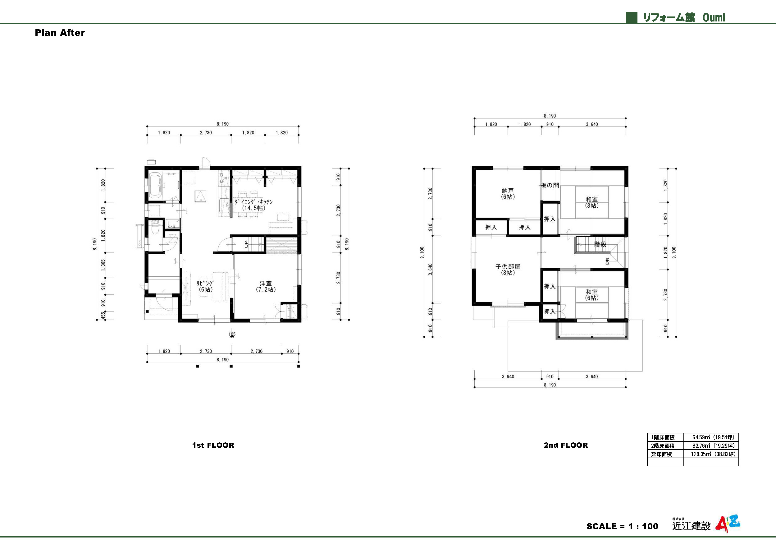
築50年経つ建物は、一度お風呂廻りの工事をしたものの古さや寒さが気になる状態でした。現状の間取りを生かしながらも、断熱工事もおこない快適にお過ごしいただけるリフォームとなりました。
コメント
和室はすべて洋室にし、1階はすべてのお部屋が繋がりワンフロアで使い勝手よくなりました。階段下のスペースにはヌックを造作、ちょっとしたおこもりスペースでくつろいで本を読んだり、お孫さんの遊びスペースとして活用できます。
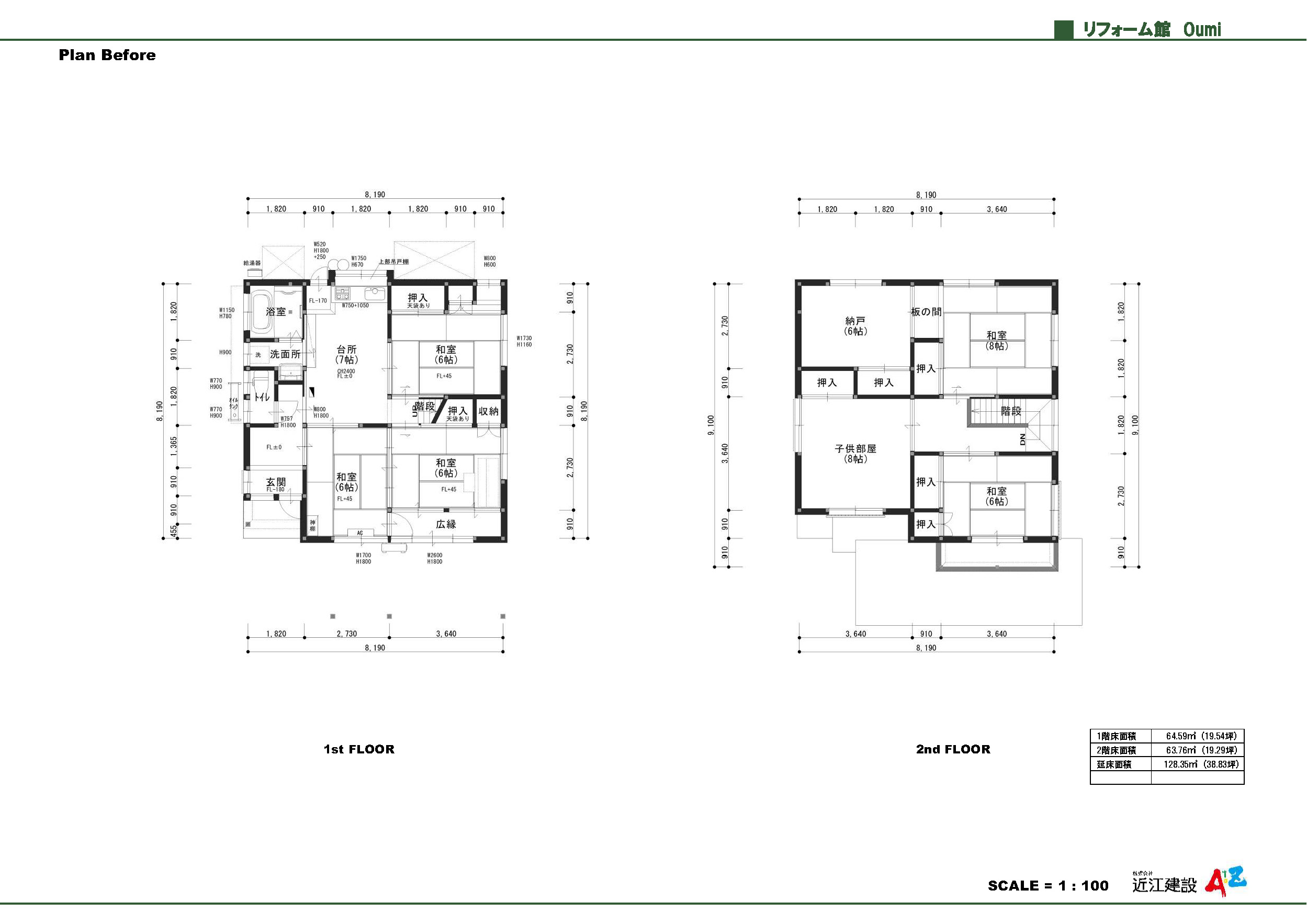
築50年経つ建物は、一度お風呂廻りの工事をしたものの古さや寒さが気になる状態でした。現状の間取りを生かしながらも、断熱工事もおこない快適にお過ごしいただけるリフォームとなりました。
和室はすべて洋室にし、1階はすべてのお部屋が繋がりワンフロアで使い勝手よくなりました。階段下のスペースにはヌックを造作、ちょっとしたおこもりスペースでくつろいで本を読んだり、お孫さんの遊びスペースとして活用できます。



