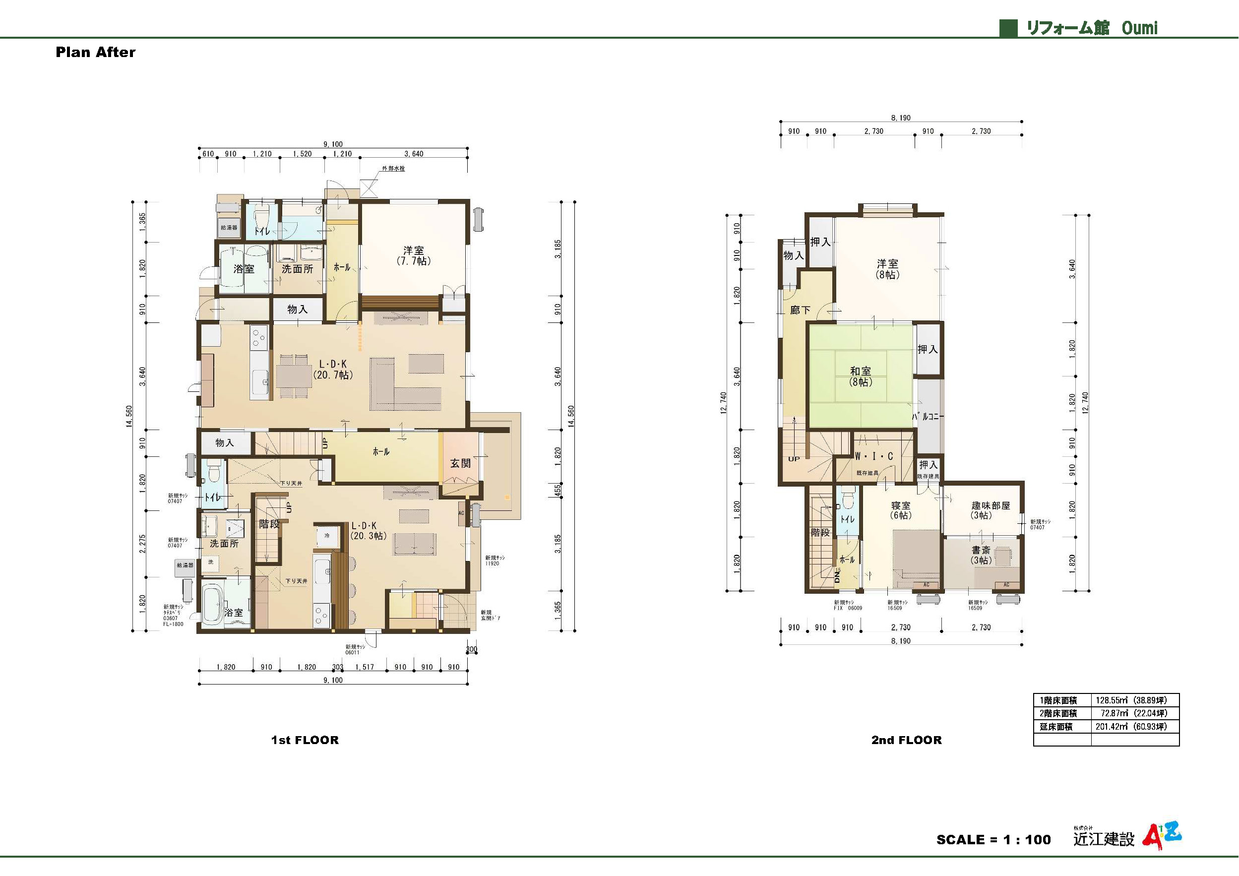
元々住まわれていた住宅の寒さが気になり、ご実家を改装してご同居されるご相談をいただきました。ご実家は以前弊社で改装させていただいており、その際にリフォームのしていないスペースをメインにリフォームすることになりました。
データ
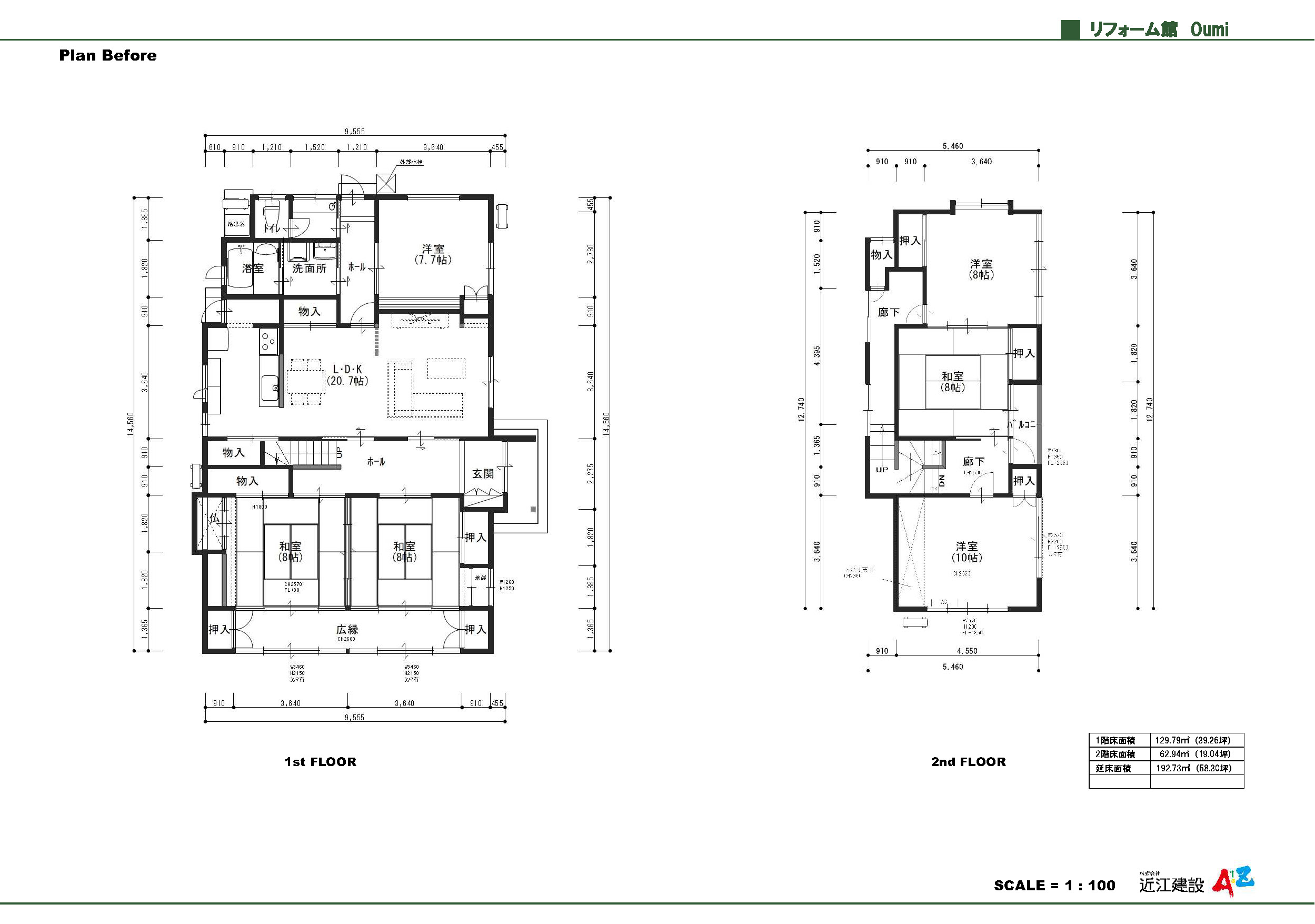
築年数:45年
家族構成:4人
コメント
2階に増築をし、在宅ワークの旦那様の趣味部屋兼仕事部屋として使えるスペースを設けました。玄関がご両親と別々なので、お互いのプライベートも守りながら生活することができます。
元々住まわれていた住宅の寒さが気になり、ご実家を改装してご同居されるご相談をいただきました。ご実家は以前弊社で改装させていただいており、その際にリフォームのしていないスペースをメインにリフォームすることになりました。
築年数:45年
家族構成:4人
2階に増築をし、在宅ワークの旦那様の趣味部屋兼仕事部屋として使えるスペースを設けました。玄関がご両親と別々なので、お互いのプライベートも守りながら生活することができます。



