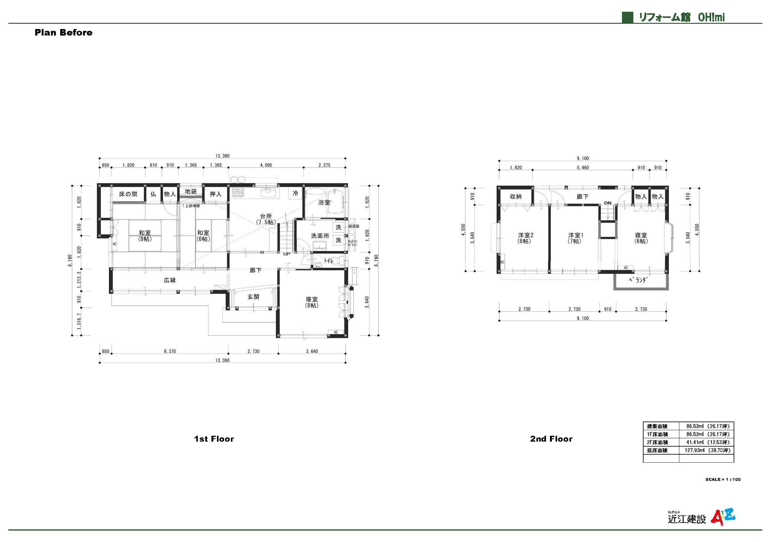
こちらのお客様は山形特有の冬寒く夏暑い環境で光熱費がかさんでいることが気になり、また耐震性にも不安を感じておりました。今回、20年前に当社でご新築したお姉さまからのご紹介がきっかけでご来場いただきました。 お客様のご希望で、間取りは大きく変えず、断熱性能向上と耐震補強をメインとして家事ラクが叶う設備をご提案致しました。 断熱性能向上のために家中のサッシを入替え、LDKを台所・和室・広縁と一間にし、さらに床などの内装の工夫で明るく開放的な空間へと大変身。 また、外壁を金属サイディングに張替えたことによりさらに家全体の断熱性能が高まり、基礎を補強したことで築50年でも安心して過ごせるようになりました。 お客様からは「想像以上にきれいになり、住みやすく大変満足しています」とお話し頂きました。
データ
費用:1550万円
築年数:50年
家族構成:5人


































